Appearance
AutoWall ​

Layer(s): CONST, WALLS
Alias: AW
Associated: Cleanup Corners / Make Rooms / Draw Wall
Cleans up construction walls and changes the wall entities to the Wall layer.

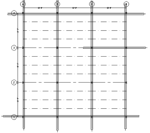
The figure here shows a building where the construction walls have been drawn and located.
Note that all of the wall ends overlap.
Select AutoWall and then pick all construction walls with a window.
All layers will be turned OFF except Const where the temporary walls are held.

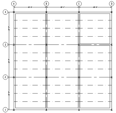
AutoWall will begin processing and find rooms within the building.
Centerlines will be removed and the corners trimmed appropriately.
The wall will now reside in the Walls layer.
NOTE: This is the easiest way to finish your walls and create rooms; however, certain wall configurations are not always recognized by AutoWall. If you get an error message or have a complicated wall layout you should use Cleanup Corners and Make Rooms commands to complete this process.
HydraCARDs (Troubleshooting) ​
For HydraCARDs regarding Autowall: [Click Here]

HydraDOCs